Wine Tasting ROom

Road less traveled

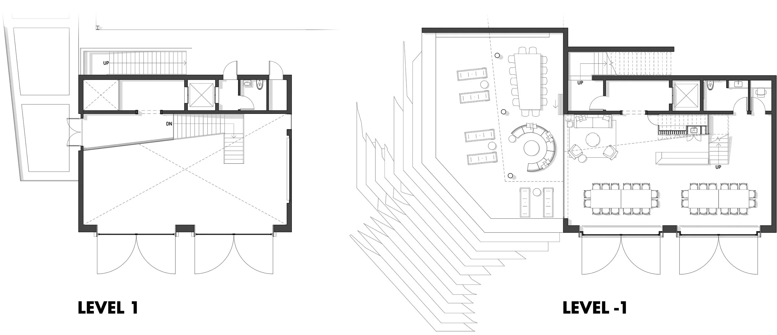
Balancing landscape and architecture, this tasting salon nestled into a hillside neither overstates its presence architecturally nor dominates the site volumetrically. Space, material, landscape, and of course wine all combine to elevate the visitor’s sensory experience in an elegant and welcoming environment.

  • Client: Confidential
    Location: Sonoma, California
    Completion Date: On the Boards

  • Concept Design, Architecture, Interior Design, Furniture Selection & Design

  • Melissa Hanley, Seth Hanley

    Renderings: Blitz